Rif: 07
TORINO
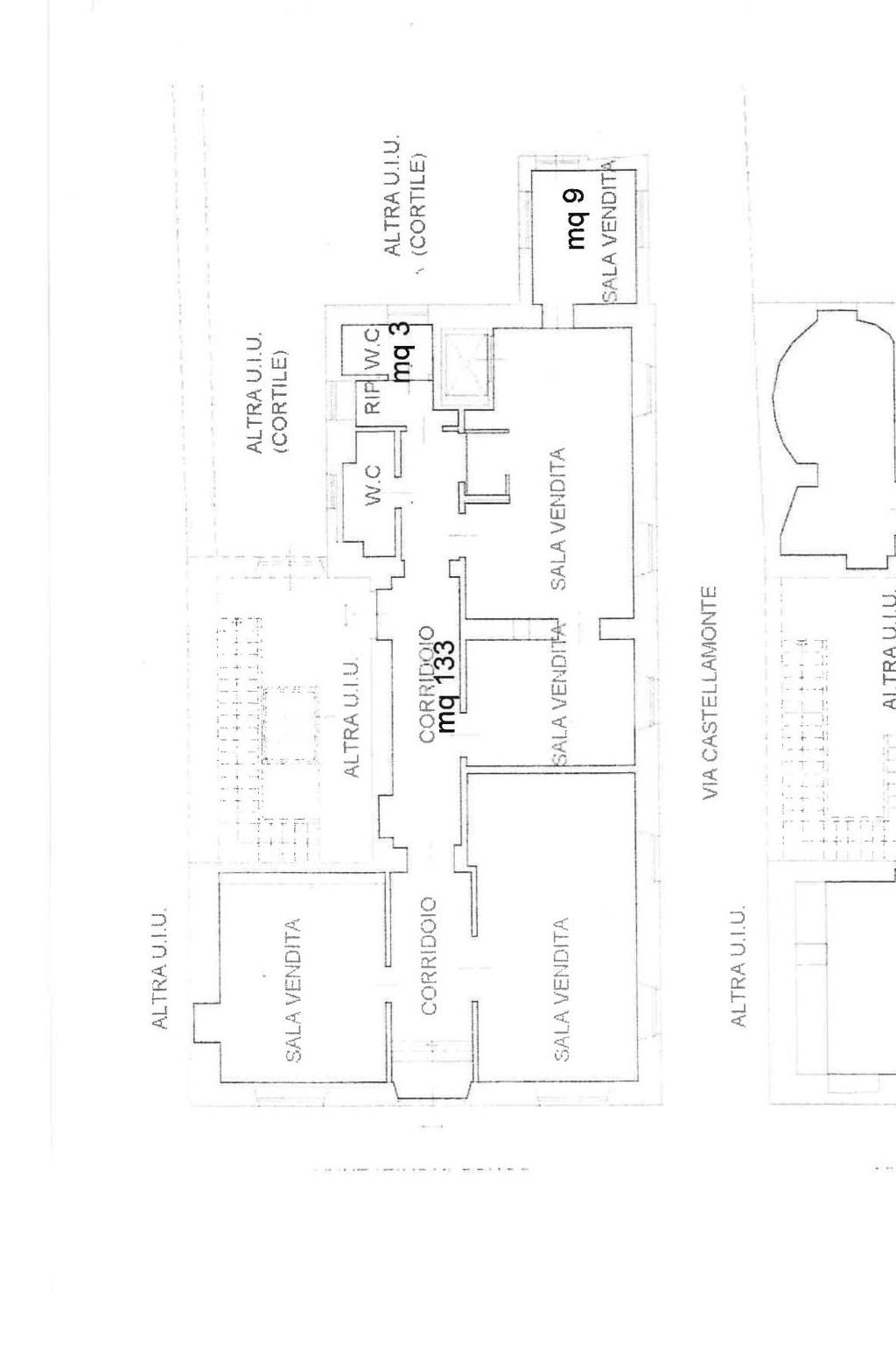
TORINO - zona Cit Turin
RECAP S.R.L Proponiamo in vendita attività commerciale presente sul territorio da oltre vent'anni, il locale è cosi composto: piano terreno di circa 145 mq commerciali con ingresso su strada, cinque sale adibite alla vendita di abiti da sposa con servizi igienici uomo/donna.
Il locale è completamente ristrutturato con materiali di pregio, impianto di condizionamento elettrico a soffitto caldo/freddo, controsoffitto con faretti a led per valorizzare la bellezza delle rifiniture interne del negozio. Piano seminterrato adibito a magazzino di circa 137 mq raggiungibile tramite montacarichi interno. Il locale è composto angolarmente con sette vetrine su strada di forte passaggio pedonale/veicolare. Prezzo di vendita attività su richiesta
Il locale è completamente ristrutturato con materiali di pregio, impianto di condizionamento elettrico a soffitto caldo/freddo, controsoffitto con faretti a led per valorizzare la bellezza delle rifiniture interne del negozio. Piano seminterrato adibito a magazzino di circa 137 mq raggiungibile tramite montacarichi interno. Il locale è composto angolarmente con sette vetrine su strada di forte passaggio pedonale/veicolare. Prezzo di vendita attività su richiesta
Consistenze
| Descrizione | Superficie | Sup. comm. |
|---|---|---|
| Principali | ||
| Negozio - piano terra | 145 Mq | 145 Mqc |
| Magazzino - piano interrato | 137 Mq | 137 Mqc |
| Totale | 282 Mqc | |






