Rif: 07
VOLPIANO
TORINO
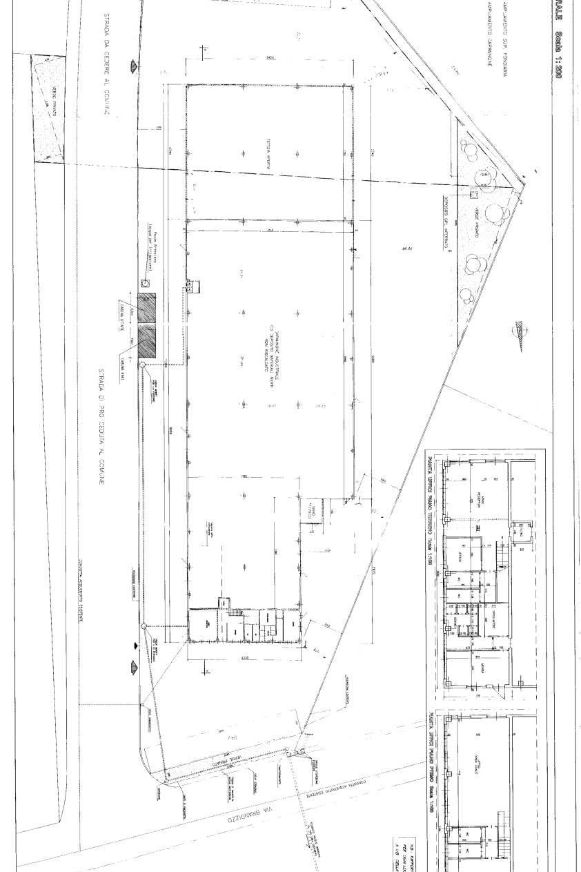
RECAP S.R.L.- Proponiamo in vendita capannone industriale di 3.750 mq circa indipendente su quattro lati vicinissimo al collegamento dell'autostrada, il capannone composto cosi : area produttiva di 3.350 mq circa, con altezza interna di 7,5 mt sottotrave e 8,5 al colmo, diversi ingressi carrai comodi per il carico e scarico della merce, impianto elettrico 220/380 con blindosbarra. Palazzina uffici di 400 mq circa su due livelli con ingresso pedonale indipendente. Cabina elettrica di proprietà adatto per società energivore. Completa la proprietà un piazzale privato recintato con due ingressi su strada di 5.000 mq circa comodo per la viabilità dei bilici.
Consistenze
| Descrizione | Superficie | Sup. comm. |
|---|---|---|
| Principali | ||
| Capannone - piano terra | 3.350 Mq | 3.350 Mqc |
| Ufficio - piano terra | 400 Mq | 400 Mqc |
| Accessorie | ||
| Esterno - piano terra | 5.000 Mq | 500 Mqc |
| Totale | 4.250 Mqc | |






