Rif: 02
RIVALTA DI TORINO
TORINO
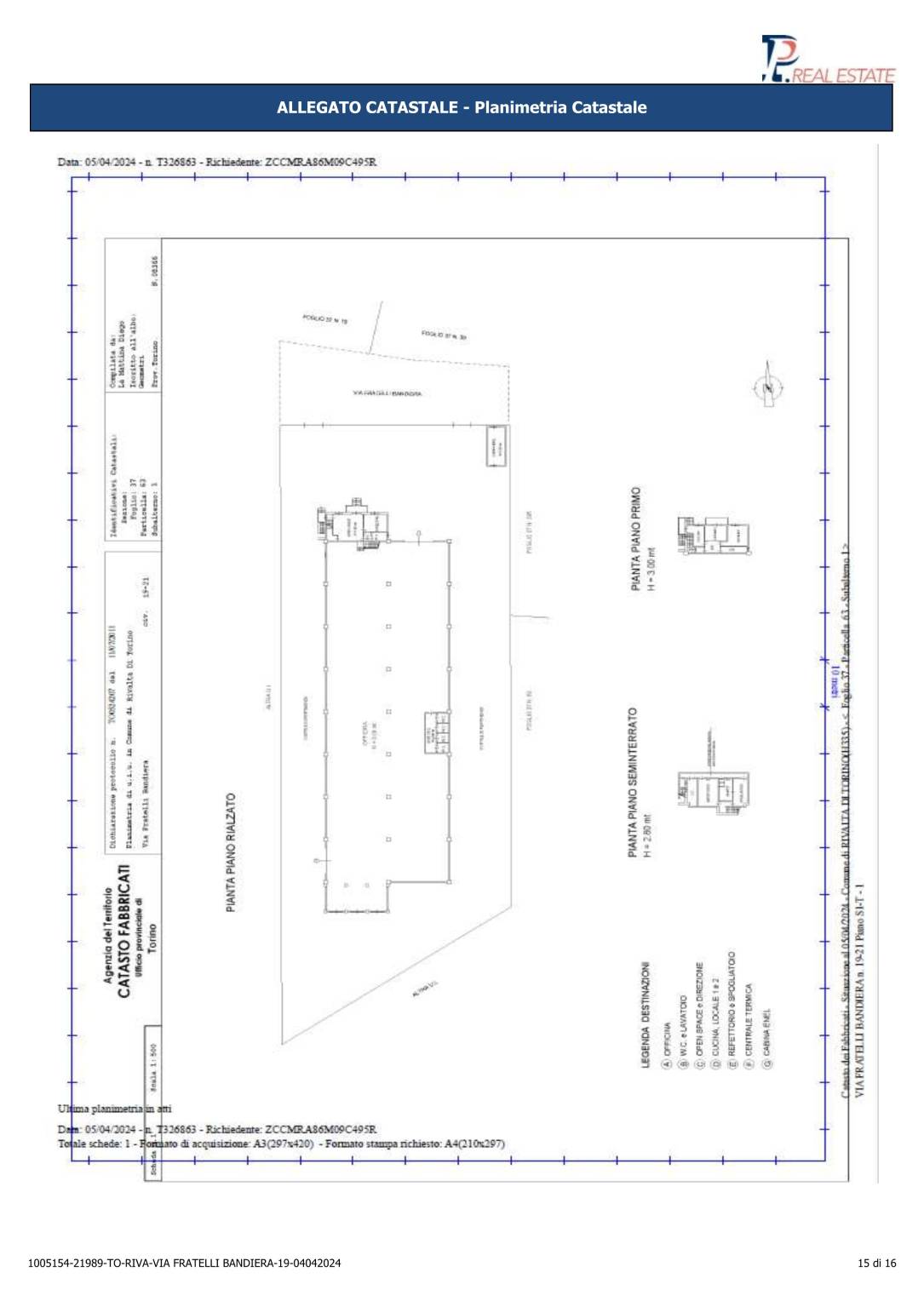
RECAP SRL: Propone in vendita capannone industriale indipendente su 4 lati in buone condizioni interne composto da: Area produttiva di 1860mq circa su due campate con altezza interna di 7,5m sotto trave predisposizione impianto di riscaldamento a metano, impianto elettrico 220/380w con quadro elettrico, spogliatoi con docce e servizi igienici al piano interrato comunicante con l'area produttiva, doppio accesso carraio con latezza di 4,5m comodo per il carico e scarico merci. Palazzina uffici completamente ristrutturata con accesso pedonale indipendente composto da: Al piano terra 70mq con sala open space, una stanza di circa 16mq, sala server e un servizio igienico. Al piano superiore collegato con scala interna 70mq con tre stanze molto luminose completo di impianto elettrico e riscaldamento, antibagno e bagno. Completa la proprietà con un piazzale indipendente su 4 lati di circa 3100mq con doppio accesso carraio su strada comodo per carico e scarico bilici.
L'immobile si trova in Via Fratelli Bandiera 19/21 a Rivalta di Torino a pochi minuti dall'imbocco della tangenziale.
Libero da subito.
L'immobile si trova in Via Fratelli Bandiera 19/21 a Rivalta di Torino a pochi minuti dall'imbocco della tangenziale.
Libero da subito.
Consistenze
| Descrizione | Superficie | Sup. comm. |
|---|---|---|
| Principali | ||
| Capannone - piano terra | 1.860 Mq | 1.860 Mqc |
| Ufficio - piano terra | 70 Mq | 70 Mqc |
| Ufficio - 1° piano | 70 Mq | 70 Mqc |
| Esterno - piano terra | 3.100 Mq | 3.100 Mqc |
| Totale | 5.100 Mqc | |






