Rif: 10
SCURZOLENGO
ASTI
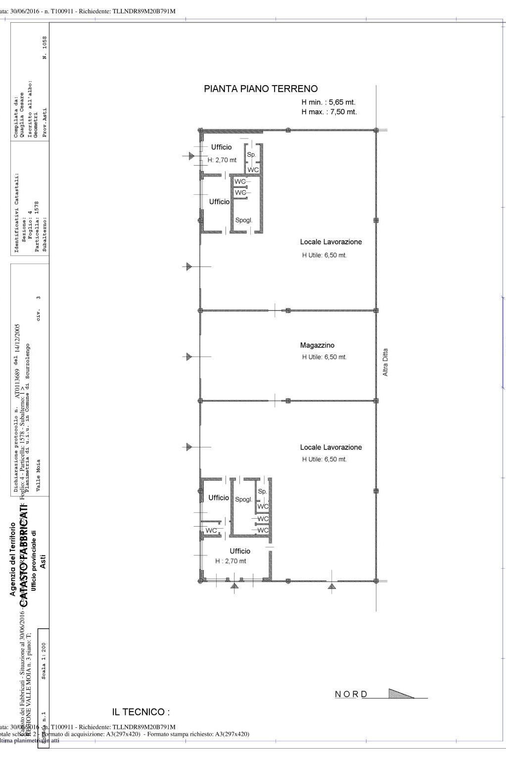
RECAP S.R.L. - Proponiamo in vendita Fabbricato artigianale/produttivo, costituito da 2 zone lavorazione separate dalla zona magazzino per un totale di 1000 mq ca, con annessi 2 blocchi ad uso uffici - spogliatoi - servizi igienici per un complessivo di 150 mq ca, ove presente impianto di riscaldamento (NO IMPIANTO DI RAFFRESCAMENTO) ; in aderenza al lato sud del capannone è stata realizzata una tettoia della superficie coperta catastale di mq 215.
Le altezze dell' area produttiva sono di 5,60 mt sotto trave e di 7,50 al colmo: presenti nei 3 blocchi impianto di riscaldamento a Robur, impianto elettrico 220/380 oltre ad impianto di illuminazione.
La proprietà immobiliare comprende anche un appezzamento di terreno, non edificabile, adibito a parcheggi ed area verde, della complessiva superficie di mq 6.710.
La struttura è in c.a. prefabbricato costituita da travi e pilastri in c.a.p. e da tamponature esterne in pannelli prefabbricati in c.a.; la copertura a falda risulta anch'essa in prefabbricato con manto di copertura in alluminio preverniciato. I serramenti esterni sono in alluminio, porte e portoni in alluminio coibentato. La pavimentazione della zona produttiva è in massetto di cls mentre nella zona uffici in piastrelle di ceramica, le tramezze in laterizio intonacato, le tettoie esterne in ferro zincato.
L'area pertinenziale è delimitata a tratti con recinzione. L'accesso all'area è garantito da un accesso carrabile protetto da cancello in metallo.
L'agglomerato urbano circostante è prevalentemente caratterizzato da fabbricati a destinazione artigianale e rurale.
L'immobile si trova in buono stato manutentivo.
Le altezze dell' area produttiva sono di 5,60 mt sotto trave e di 7,50 al colmo: presenti nei 3 blocchi impianto di riscaldamento a Robur, impianto elettrico 220/380 oltre ad impianto di illuminazione.
La proprietà immobiliare comprende anche un appezzamento di terreno, non edificabile, adibito a parcheggi ed area verde, della complessiva superficie di mq 6.710.
La struttura è in c.a. prefabbricato costituita da travi e pilastri in c.a.p. e da tamponature esterne in pannelli prefabbricati in c.a.; la copertura a falda risulta anch'essa in prefabbricato con manto di copertura in alluminio preverniciato. I serramenti esterni sono in alluminio, porte e portoni in alluminio coibentato. La pavimentazione della zona produttiva è in massetto di cls mentre nella zona uffici in piastrelle di ceramica, le tramezze in laterizio intonacato, le tettoie esterne in ferro zincato.
L'area pertinenziale è delimitata a tratti con recinzione. L'accesso all'area è garantito da un accesso carrabile protetto da cancello in metallo.
L'agglomerato urbano circostante è prevalentemente caratterizzato da fabbricati a destinazione artigianale e rurale.
L'immobile si trova in buono stato manutentivo.
Consistenze
| Descrizione | Superficie | Sup. comm. |
|---|---|---|
| Principali | ||
| Capannone - piano terra | 900 Mq | 900 Mqc |
| Ufficio - piano terra | 100 Mq | 100 Mqc |
| Accessorie | ||
| Esterno - piano terra | 6.700 Mq | 670 Mqc |
| Totale | 1.670 Mqc | |






