Rif: RIF.02
GERMAGNANO
TORINO
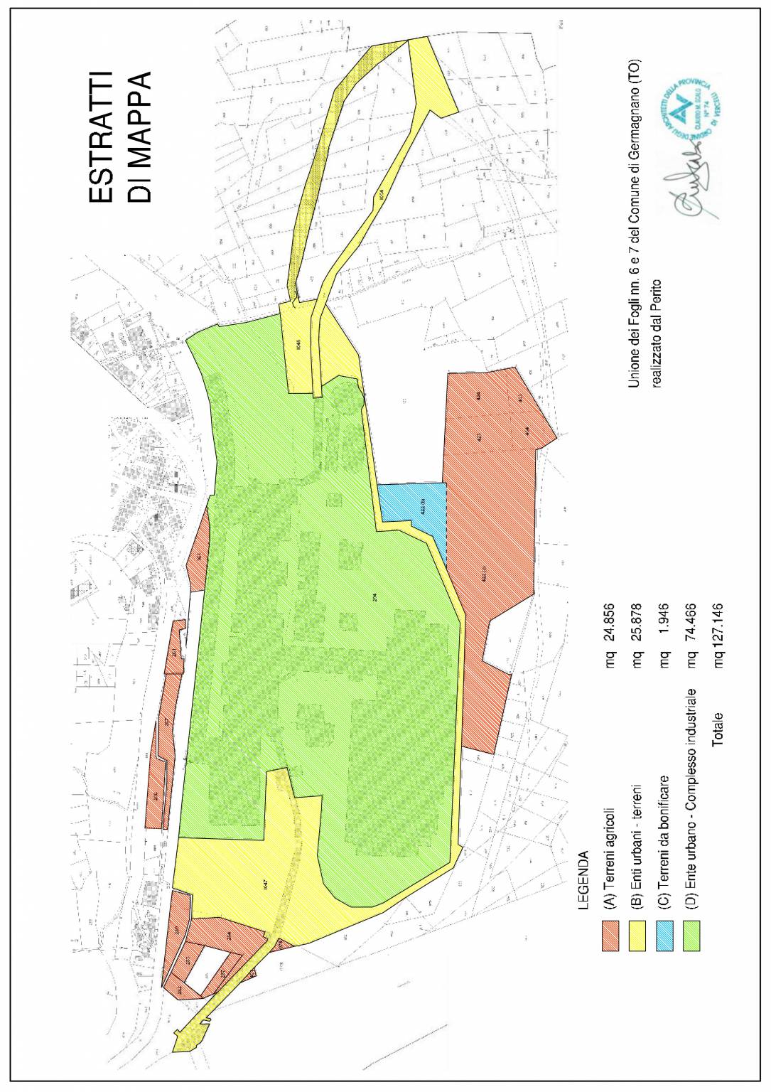
RECAP SRL: VENDE a Germagnano sulla strada provinciale terreno con capannoni e palazzina uffici per un totale di 127.000mq.
Il complesso è così formato da:
74.500mq complesso industriale.
26.000mq terreno esclusivo
25.000mq terreni agricoli
2.000mq terreno da bonificare.
Possibilità di riqualificare in residenziale/commerciale.
Per maggior info contattare la RECAP SRL - 011/18958273
Il complesso è così formato da:
74.500mq complesso industriale.
26.000mq terreno esclusivo
25.000mq terreni agricoli
2.000mq terreno da bonificare.
Possibilità di riqualificare in residenziale/commerciale.
Per maggior info contattare la RECAP SRL - 011/18958273
Consistenze
| Descrizione | Superficie | Sup. comm. |
|---|---|---|
| Principali | ||
| Capannone - piano terra | 75.000 Mq | 75.000 Mqc |
| Esterno - piano terra | 26.000 Mq | 26.000 Mqc |
| Terreno - piano terra | 26.000 Mq | 26.000 Mqc |
| Totale | 127.000 Mqc | |






