Rif: 07
VOLPIANO
TORINO
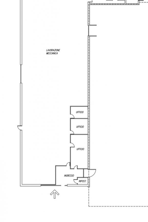
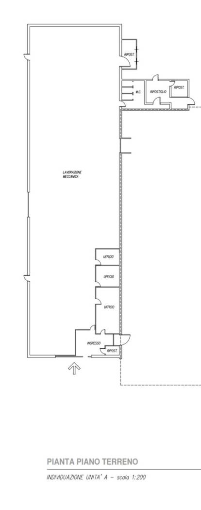
RECAP S.R.L. - Proponiamo in vendita in posizione strategica vicinissimo all'imbocco della tangenziale nord capannone di 1.100 mq circa composto cosi : area produttiva di 1.000 mq circa openspace con altezza interna di 5 mt sotto panelli di cartongesso e di 9 mt se si decidesse di rimuovere i panelli di cartongesso, due ingressi carrai uno frontale ed uno laterale comodi per carico e scarico merci, impianto elettrico 220/380 con blindosbarra, impianto di area compressa su tutta la superficie del capannone con annesso compressore, impianto antincendio sprinkler soffitto con rilevatori di fumi da rimettere in funzione. Ufficio di 100 mq circa posizionati all'interno del capannone, internamente al capannone sul lato destro troviamo servizi igienici uomo/donna con spogliatoi con sala Break. Completa la proprietà un piazzale esterno privato recintato di 500 mq circa con sistema di video sorveglianza con telecamere e sensori interni ed esterni. Sempre esternamente di proprietà del capannone e presente una cabina di trasformazione utile per attività produttive energivore.
Consistenze
| Descrizione | Superficie | Sup. comm. |
|---|---|---|
| Principali | ||
| Capannone - piano terra | 1.000 Mq | 1.000 Mqc |
| Ufficio - piano terra | 100 Mq | 100 Mqc |
| Accessorie | ||
| Esterno - piano terra | 500 Mq | 50 Mqc |
| Totale | 1.150 Mqc | |






