Rif: RIF.10
VILLANOVA D'ASTI
ASTI
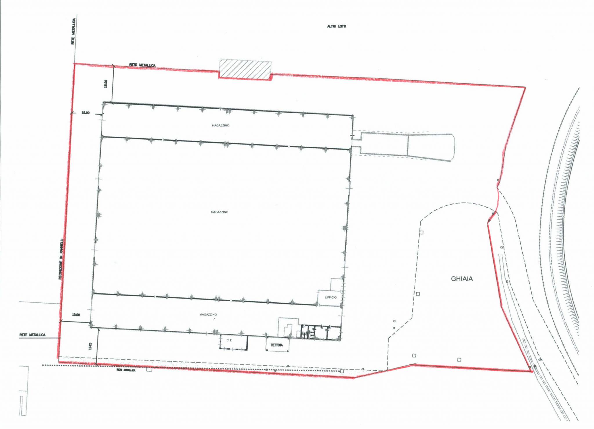
RECAP S.R.L. - Proponiamo in affitto a Villanova d'Asti fronte tangenziale capannone industriale di 6000mq circa in ottime condizioni interne composto da: area produttiva nella parte centrale di circa 4000mq open space con altezza sotto trave di 10m. completo di impianto elettrico 220/380w, molto luminoso con otto accessi carrai comprensivi di una baia di carico, due campate di 1000mq circa con altezza di 7,5m completo di impianto elettrico 220/380w, blocco ufficio di circa 50mq con doppi servizi igienici, sala mensa/spogliatoio. Indipendente su quattro lati con piazzale esterno di circa 6.000 mq comodo per accesso e movimentazione bilici. No mensole per carroponte. Ottimo capannone per logistica all'imbocco dall'uscita autostradale di Villanova d'Asti a pochi minuti dalla tangenziale di Torino-Piacenza. La proprietà si riserva di richiedere a garanzia degli affitti la fideiussione bancaria.
LIBERO DA DICEMBRE 2025
10
LIBERO DA DICEMBRE 2025
10
Consistenze
| Descrizione | Superficie | Sup. comm. |
|---|---|---|
| Principali | ||
| Capannone - piano terra | 6.000 Mq | 6.000 Mqc |
| Ufficio - piano terra | 50 Mq | 50 Mqc |
| Totale | 6.050 Mqc | |






